고객 맞춤형 도배 견적서: 경기도 광주 연립주택 (85㎡)
고객님의 소중한 보금자리를 더욱 아름답고 쾌적하게 꾸미기 위한 맞춤형 도배 견적서를 제안 드립니다. 특히 이번 견적은 고객님의 특별한 요구사항인 '거실은 천정만 도배'와 '천정-벽 별도 시공' 방식을 적극 반영하여, 심미성과 경제성을 동시에 만족시킬 수 있도록 구성하였습니다.
일반적으로 거실은 천정과 벽을 모두 도배하지만, 고객님께서는 거실 천정만 도배를 원하셨습니다. 이는 거실의 메인 벽면을 별도의 마감재(예: 아트월, 페인트 등)로 꾸미거나, 혹은 미니멀하고 깔끔한 인테리어를 선호하는 트렌드를 반영한 매우 감각적인 선택입니다. 천정 도배만으로도 공간에 통일감과 정돈된 느낌을 줄 수 있으며, 벽면 인테리어에 대한 무한한 가능성을 열어두는 효과가 있습니다.
또한, 천정과 벽에 각기 다른 벽지를 사용하는 방식은 실용성과 디자인을 모두 잡을 수 있는 현명한 선택입니다. 오염에 취약하고 시각적으로 넓어 보이는 효과가 중요한 천정에는 고급스러운 질감의 실크벽지를, 방의 주된 분위기를 결정하면서도 비용 절감이 필요한 벽에는 광폭합지를 적용하여 합리적인 비용으로 최고의 인테리어 효과를 얻을 수 있도록 설계했습니다.
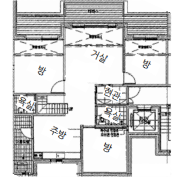
제공해주신 정보를 바탕으로 3개의 방(3500*4000, 3200*2800, 3300*2600), 거실, 주방, 욕실 2개, 현관, 앞뒤 발코니가 있는 84.65제곱미터 평면도를 기준으로 아래와 같이 두 가지 시공 방식을 제안 드립니다.

1. 시공 방식: 전체 실크벽지
실크벽지는 PVC 코팅이 되어 있어 내구성이 뛰어나고 오염에 강합니다. 고급스러운 질감과 다양한 패턴으로 공간의 품격을 높여주며, 추후 오염 발생 시 물걸레로도 쉽게 닦아낼 수 있어 관리가 매우 편리하다는 장점이 있습니다.
- 적용 범위: 방 3개(천정+벽), 거실(천정만)
- 예상 비용:
- 실크벽지 시공은 일반적으로 1제곱미터당 20,000원에서 30,000원 선의 자재비와 시공비가 발생합니다.
- 고객님 댁의 총면적 84.65제곱미터를 기준으로, 총 약 1,700,000원에서 2,500,000원 사이의 비용이 예상됩니다.
2. 시공 방식: 천정 실크벽지, 벽 광폭합지
이 방식은 경제성을 고려하면서도 실크벽지의 장점을 누릴 수 있는 현명한 조합입니다. 눈에 잘 띄는 천정에는 실크벽지를 시공하여 공간 전체의 퀄리티를 높이고, 상대적으로 비용 부담이 적은 광폭합지를 벽에 사용하여 합리적인 가격에 깔끔한 마감을 선사합니다. 광폭합지는 통풍성이 좋아 쾌적한 실내 환경 유지에도 도움이 됩니다.
- 적용 범위: 방 3개(천정은 실크벽지, 벽은 광폭합지), 거실(천정만 실크벽지)
- 예상 비용:
- 천정 실크, 벽 광폭합지 시공은 일반적으로 1제곱미터당 15,000원에서 22,000원 선의 자재비와 시공비가 발생합니다.
- 고객님 댁의 총면적 84.65제곱미터를 기준으로, 총 약 1,270,000원에서 1,860,000원 사이의 비용이 예상됩니다.
마무리하며
제시된 견적은 고객님의 특별한 인테리어 구상에 맞춰 디테일한 부분까지 고려한 맞춤형 제안입니다. 거실 천정만 도배하여 비용을 절감하면서도 다른 마감재를 활용할 수 있는 유연성을 확보하고, 천정과 벽의 소재를 달리하여 실용성과 디자인을 모두 잡은 이번 견적이 고객님의 만족스러운 선택에 도움이 되기를 바랍니다.
정확한 견적 산출을 위해서는 현장 방문을 통해 기존 벽지 상태, 공간 특성 등을 확인하는 것이 필수적입니다. 현장 방문 후 더욱 상세하고 정확한 견적이 제공됩니다. 감사합니다.
'도배인테리어' 카테고리의 다른 글
| 현장근로자 도배사, 하루 일당이... (1) | 2025.09.06 |
|---|---|
| 손상된 벽지, 같은 제품 찾는 현실적인 5가지 방법 (1) | 2025.09.01 |
| 이것 없었으면, 실크벽지 이음매 벌어짐 보수에 진땀 뺄뻔 (4) | 2025.08.10 |
| 겉모습만 보고 판단 금물! 숨겨진 일꾼, 운용지의 모든 것 (2) | 2025.07.21 |
| 이것 안 하고 도배했다가 3개월 만에 다시 뜯었습니다 (1) | 2025.07.16 |